Модена

 

Работаем на всей территории Республики Беларусь!
Тип: Дом из бруса
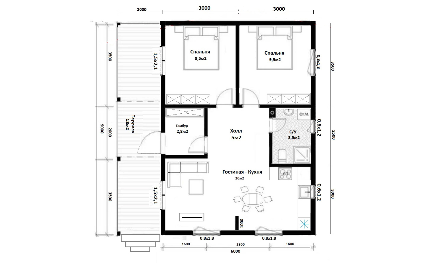
Общая площадь объекта 72 м2
Жилая площадь объекта 50,3 м2
Срок строительства (?)
Терраса Да
Старая цена 39 600 $
Получить бесплатную консультацию

Этот современный дом доставит вам и вашим близким ощущение комфорта и уюта на загородном участке. В этом проекте отлично сочетаются: огромная кухня-гостиная, полноценная сауна, сан.узел, и две спальни. Второй этаж с вторым светом открывает отличный пейзаж на красивый благоустроенный участок.

Кухня-гостиная – 1 шт.

Комнат – 3 шт.

Санузел – 1 шт.

Терраса – 2 шт.

Прихожая – 1 шт.

 

Комплектация объекта :  Каркасные  дома 


Характеристика

Обвязка

Гидроизоляция фундамента

Обвязка выполняется из не строганного бруса 150х150мм ,

Рубероид

Лаги пола

Брус  100х150 мм. (не строганный),

шаг не более 600 мм.;

Черновой пол

 

 

Чистовой пол

 

 

Обрезная доска 100 х 20 (второй сорт), уложенная всплошную; черепные бруски 40х50мм

 

Шпунтованная доска пола 36мм/ ламинат, ОСБ(доп)

Гидроизоляционная мембрана

Утеплитель рулонный 150мм "Isover" (или аналоги)

Пароизоляционная мембрана

Стены  (конструкция каркаса)

Каркас деревянный ,  стойки брус  50х150мм

Перегородки –брус  50х100мм, 50х150мм

Межэтажное перекрытие- брус 100х150мм с шагом 600мм

Наружная отделка: имитация бруса

/ блок хаус/ ЦСП плита/ сайдинг (доп)

Внутренняя отделка – имитация бруса /гипсокартон (доп)

Потолок: вагонка хвойных пород / натяжной потолок (доп).

Высота потолка 2500мм

Устройство кровли

Стропила: брус  50х150 мм, ригели 50х150 мм.

Гидроветрозащитная мембрана по верху стропил. Контробрешетка

Обрешетка из доски 20х100 мм.

Комплектующие элементы кровли: карнизная планка, торцевая планка, коньковая планка

Кровельное покрытие: металлочерепица «Монтерей»

ОСБ, мягкая черепица (доп)

Утепление и паро-гидроизоляция

  Утепление внешних стен 150 мм. 200мм (доп)

  Утепление межкомнатных перегородок 100 мм(150мм).

  Утепление межэтажного перекрытия  150 мм.

  Утепление кровли 150 мм, скатная кровля.

  Пароизоляционная пленка по внешним стенам STROTEX.

  Пароизоляционная пленка по стропилам изнутри. STROTEX

  Гидроветрозащитная мембрана по фасаду STROTEX

Окна

ПВХ, двухкамерные стеклопакеты,  профиль 70мм, отливы , подоконники, сетки

Двери

Входные двери – металлическая РФ

Межкомнатные –Экошпон  /МДФ

Погонажные изделия:

крепеж

Наличник: камерной сушки,  плинтус

Гвозди (черные, оцинкованные),

Лестница деревянная

Столбы точеные, ступени , балясины точеные, тетива ,перила

Терраса (крыльцо)

Столбы брус строганный 150х150мм, балясины , перила, потолок  вагонка,  пол- доска пола. Терраса не утепляется

Обработка огебиозащита

Огебиозащита для дерева : каркас, стропильная система , межэтажное перекрытие , обвязочный брус  -2 слоя.

Доставка , монтаж

Доставка

Монтаж

Каждая комплектация может быть изменена или дополнена по желанию клиента.

ДОПОЛНИТЕЛЬНО РАССЧИТЫВАЕТСЯ:  Проект (предоставляется бесплатно, в том случае если дом строится нашей компанией),  фундамент свайно-винтовой, электрика, канализация , водосточная система, покраска дома, зашивка фундамента .

ДОМ Тоскана ПОД КЛЮЧ

​Стены

брус профилированный, естественной влажности 100х150 уложенный на джутовое полотно 100 мм. Сборка на березовые нагеля или гвозди

Углы сруба

запиливаются в теплый угол «шип — паз»

Гидроизоляция (между фундаментом и обвязкой)

рубероид марки 350

Обвязка

брус 150х150

Черновой пол

обрезная доска 100 х 20 (второй сорт), уложенная всплошную

Лаги пола

брус 100х150 мм. (не строганный), шаг не более 600 мм

Черновой брусок

40х40 мм

Паро- гидроизоляция

из защитных пленок "А" и "Б"

Утепление пола и потолка

рулонный ISOVER 150 мм

Чистовой полы  

шпунтовая доска камерной сушки, 28 мм

Потолок

1-й этаж —  высота в чистоте 2,5 м; подшит вагонкой хвойных пород.  2-й этаж (если имеется) — высота в чистоте 2,4 м

Перегородки

брус профилированный, естественной влажности 100х150 мм (в чистоте 92х142), без прокладки джутового полотна. Сборка на березовые нагеля ил гвозди

Фронтоны

каркас: 150х50 мм. наружная отделка: имитация бруса  или блок-хаус

Столярные изделия

Окна ПВХ. Двери межкомнатные-  филенчатые. Дверь входная – металлическая. Ройка (обсада) на дверной проем. Ройка (обсада) на оконный проем.

Крыша

стропильная система: 150х40 мм (не строганный), шаг не более 900 мм ; обрешетка: обрезная доска 20 мм, допускается шаг не более 300 мм

Кровля

металлочерепица/ондулин (цвет на выбор). Свесы 50 см

Погонажные изделия

плинтус камерной сушки, ширина 40 мм, сорт В

Наличник

вагонка камерной сушки, сорт В

Промазка пола

промазка-обработка половых лаг, чернового пола, обвязочного бруса

В стоимость входит доставка по РБ, разгрузка и монтаж

По желанию Заказчика, возможно изменение комплектации.
Дополнительно возможна установка свайно-винтового или ленточного фундамента!

Получить бесплатную консультацию

Цена от: Договорная $

ПОХОЖИЕ ПРЕДЛОЖЕНИЯ

Цена 31 600 $
Тип:   Дом из бруса
Размер: 9х8
Площадь помещения: 62 м2
Площадь застройки: 72 м2
Подробней ...
Цена 32 900 $
Тип:   Дом из бруса
Размер: 13х9
Площадь помещения: 52,2 м2
Площадь застройки: 117 м2
Подробней ...
Цена 36 970 $
Тип:   Дом из бруса
Размер: 7x13
Площадь помещения: м2
Площадь застройки: м2
Подробней ...
Цена 36 000 $
Тип:   Дом из бруса
Размер:
Площадь помещения: 50,3 м2
Площадь застройки: 72 м2
Подробней ...
Цена 39 300 $
Тип:   Дом из бруса
Размер: 13х9,85
Площадь помещения: 72 м2
Площадь застройки: 128 м2
Подробней ...
Цена 41 000 $
Тип:   Дом из бруса
Размер: 14,4х13,4
Площадь помещения: м2
Площадь застройки: 193 м2
Подробней ...
Цена 44 000 $
Тип:   Дом из бруса
Размер:
Площадь помещения: 64,5 м2
Площадь застройки: 110,88 м2
Подробней ...
Цена 42 000 $
Тип:   Дом из бруса
Размер:
Площадь помещения: 57,5 м2
Площадь застройки: 84 м2
Подробней ...